Skip To Content

7824 E Autry Ln

Athol, ID 83801
  • $995,000
  • STATUS: Active
  • ON SITE: 63 Days
  • ID#: 25-9217
$995,000
  • 4
    BEDS
  • 5
    ACRES
  • 3
    BATHS
  • 1
    1/2 BATHS
  • 2,822
    SQFT
  • $353
    $/SQFT
Neighborhood:
Type:
Single-Family Home
Built:
2025
County:

School Ratings & Info

School District:

Description

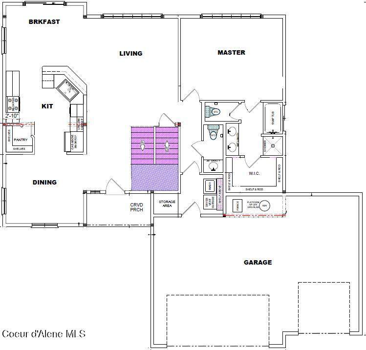
Not many left in this desirable community...This brand-new home in the sought-after Ranch 54 community still gives you the chance to select your finishes and personal touches. Set on 5 scenic acres, this 2-story, 2,822 sq. ft. home offers both a MAIN-FLOOR primary suite PLUS a second suite upstairs, creating flexibility for guests or multigenerational living. With 4 bedrooms and 3.5 baths, plus a 3-car garage, there's room for everyone. The light-filled floor plan brings together the living room, kitchen, and dining space in an open design built for gatherings. Thoughtful details include: Luxury vinyl plank flooring on the main level, granite counters with 6'' backsplash, tile shower surround in the primary bath, smart thermostats for comfort and efficiency. Outside, enjoy durable cement board siding with stone accents, rain gutters, exterior lighting, and a generous covered patio that invites you to watch sunsets and spot local wildlife. All this just minutes from Lake Pend Oreille

Monthly Payment Calculator



© 2025 Coeur d'Alene MLS. All rights reserved. The data relating to real estate for sale or lease on this web site comes in part from Coeur d'Alene MLS. IDX information is provided exclusively for consumers' personal, non-commercial use and may not be used for any purpose other than to identify prospective properties consumers may be interested in purchasing. Information is deemed reliable but is not guaranteed accurate by the MLS or Idaho Listings Group | Keller Williams Realty Coeur d’ Alene.Data last updated: 2025-11-11T00:02:38.5.
www.idaholistings.com/homes/167722456
Print Image

7824 E Autry Ln Athol, ID 83801

  • Price: $995,000
  • Status: Active
  • On Site: 63 Days
  • ID#: 25-9217
4
Beds
3
Baths
1
½ Baths
5
Acres
2,822
SQFT
$353
$/SQFT
2025
Built
Neighborhood:
Ranch 54
County:
Kootenai
Area:
06 - Ne Kootenai County
School District:
Lakeland - 272
Property Description
Not many left in this desirable community...This brand-new home in the sought-after Ranch 54 community still gives you the chance to select your finishes and personal touches. Set on 5 scenic acres, this 2-story, 2,822 sq. ft. home offers both a MAIN-FLOOR primary suite PLUS a second suite upstairs, creating flexibility for guests or multigenerational living. With 4 bedrooms and 3.5 baths, plus a 3-car garage, there's room for everyone. The light-filled floor plan brings together the living room, kitchen, and dining space in an open design built for gatherings. Thoughtful details include: Luxury vinyl plank flooring on the main level, granite counters with 6'' backsplash, tile shower surround in the primary bath, smart thermostats for comfort and efficiency. Outside, enjoy durable cement board siding with stone accents, rain gutters, exterior lighting, and a generous covered patio that invites you to watch sunsets and spot local wildlife. All this just minutes from Lake Pend Oreille
Exterior Features

Attached Garage YN Yes Building Style Multi-Level Construction Materials Fiber CementStoneFrame Exterior Features LightingRain Gutters Foundation Details Concrete Perimeter Garage Capacity 3 Car Garage Type Att Garage Lot Features Open LotLevelWoodedCul-De-Sac Other Structures [] Road Responsibility Public Maintained Road Road Surface Type Paved Roof Composition View Mountain(s)Territorial View YN Yes Waterfront Features []

Interior Features

Appliances Gas RangeMicrowaveDisposalDishwasher Basement NoneSlab on grade Basement YN No Breakfast Bar Yes Common Walls No Common Walls Counter Type Granite/Quartz Flooring TileLaminateCarpet Heating Natural GasFireplace(s)Forced Air Interior Features Smart ThermostatWasher Hookup Kitchen Island Yes Main Floor Utilities True Main Level Bathrooms 2 Main Level Bedrooms 1 Walk In Pantry Yes

Property Features

Association Fee $150.00 Association Fee Frequency Annually Association YN Yes Building Area Total 2822 Cash Yes Community Features [] Conventional Yes Flood Zone Unknown Green Energy Efficient [] Income Producing No Lot Type Residential New Construction Yesunder construction Property Sub Type Site Built > 2 Acres REOYN No Sewer Septic Tank Short Sale YN No Subject To Aircraft Flight Zone2 Unknown Subject To CCRs2 Yes Tax Annual Amount 0 Tax Year 2024 Water Source Shared Well Zoning RES

Listing provided courtesy of Northwest Realty Group: .


© 2025 Coeur d'Alene MLS. All rights reserved. The data relating to real estate for sale or lease on this web site comes in part from Coeur d'Alene MLS. IDX information is provided exclusively for consumers' personal, non-commercial use and may not be used for any purpose other than to identify prospective properties consumers may be interested in purchasing. Information is deemed reliable but is not guaranteed accurate by the MLS or Idaho Listings Group | Keller Williams Realty Coeur d’ Alene.Data last updated: 2025-11-11T00:02:38.5.
 
https://bt-photos.global.ssl.fastly.net/coeurdalene/1280_boomver_3_25-9217-2.jpg https://bt-photos.global.ssl.fastly.net/coeurdalene/1280_boomver_3_25-9217-2.jpg https://bt-photos.global.ssl.fastly.net/coeurdalene/1280_boomver_3_25-9217-2.jpg
Logo
Idaho Listings Group | Keller Williams Realty Coeur d’ Alene
3931 N Schreiber Way
Coeur d’ Alene ID, 83815