Skip To Content

6581 W Plant Ln

Rathdrum, ID 83858
  • $N/A
  • STATUS: Closed
  • ON SITE: 364 Days
  • ID#: 25-423
Sold - 10/14/2025
$N/A
SOLD - 10/14/2025
  • 3
    BEDS
  • 0.26
    ACRES
  • 2
    BATHS
  • 0
    1/2 BATHS
  • 1,800
    SQFT
  • $0
    $/SQFT
Neighborhood:
Type:
Single-Family Home
Built:
2025
County:

School Ratings & Info

School District:

Description

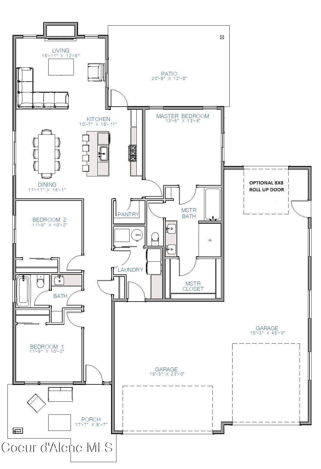
To be built New Construction with an RV Garage in Hollice Woods! The Salem is a one-story, 1,800 square foot home offering a great space for entertaining in the open-concept kitchen, dining room, and living room. This floor plan features a master suite, two guest bedrooms, two full baths, and a laundry/utility room off the garage. The master suite has a walk-in closet, walk-in shower, and dual sink vanity. You will love taking in the views from your covered back patio or covered front porch. Quality standard features include cement lap siding, quartz with backsplash throughout, gas fireplace with masonry, central AC, and more! Upgrades available. 3 car and 2 car garage options available! Photos of previously built homes. Buyer incentive included!

Monthly Payment Calculator



© 2026 Coeur d'Alene MLS. All rights reserved. The data relating to real estate for sale or lease on this web site comes in part from Coeur d'Alene MLS. IDX information is provided exclusively for consumers' personal, non-commercial use and may not be used for any purpose other than to identify prospective properties consumers may be interested in purchasing. Information is deemed reliable but is not guaranteed accurate by the MLS or Idaho Listings Group | Keller Williams Realty Coeur d’ Alene.Data last updated: 2026-01-13T00:02:33.443.
www.idaholistings.com/homes/159398120
Print Image

6581 W Plant Ln Rathdrum, ID 83858

  • Price: $664,000
  • Status: Closed
  • On Site: 364 Days
  • ID#: 25-423
3
Beds
2
Baths
0
½ Baths
0.26
Acres
1,800
SQFT
$0
$/SQFT
2025
Built
Neighborhood:
Hollice Woods
County:
Kootenai
Area:
04 - Rathdrum/Twin Lakes
School District:
Lakeland - 272
Property Description
To be built New Construction with an RV Garage in Hollice Woods! The Salem is a one-story, 1,800 square foot home offering a great space for entertaining in the open-concept kitchen, dining room, and living room. This floor plan features a master suite, two guest bedrooms, two full baths, and a laundry/utility room off the garage. The master suite has a walk-in closet, walk-in shower, and dual sink vanity. You will love taking in the views from your covered back patio or covered front porch. Quality standard features include cement lap siding, quartz with backsplash throughout, gas fireplace with masonry, central AC, and more! Upgrades available. 3 car and 2 car garage options available! Photos of previously built homes. Buyer incentive included!
Exterior Features

Attached Garage YN Yes Building Style Single Level Construction Materials HardboardFrame Exterior Features LightingRain GuttersLawn Foundation Details Concrete Perimeter Garage Capacity 4+ Car Garage Type Att Garage Lot Features Sprinklers In FrontOpen LotLandscaped Other Structures [] Road Responsibility Public Maintained Road Road Surface Type Paved Roof Composition View Neighborhood Waterfront Features []

Interior Features

Appliances Gas RangeGas Water HeaterMicrowaveDisposalDishwasher Basement Crawl Space Basement YN No Breakfast Bar Yes Common Walls No Common Walls Counter Type QUARTZ Flooring CarpetLVP Heating Natural GasFireplace(s)Forced Air Interior Features SatelliteSmart ThermostatWasher Hookup Kitchen Island Yes Main Floor Utilities True Main Level Bathrooms 3 Main Level Bedrooms 3 Walk In Pantry Yes

Property Features

Association Fee 450 Association Fee Frequency Annually Association YN Yes Building Area Total 1800 Cash Yes Community Features SidewalksCurbs Conventional Yes Financing Conventional Loan Flood Zone Unknown Green Energy Efficient [] Income Producing No Lot Type Residential New Construction Yesto be built Property Sub Type Site Built < 2 Acre REOYN No Sewer Public Sewer Short Sale YN No Subject To Aircraft Flight Zone2 Unknown Subject To CCRs2 Yes Tax Annual Amount 288 Tax Year 2023 VALoan Yes Water Source Public Zoning RES

Listing provided courtesy of Coldwell Banker Schneidmiller Realty: 800-829-2555.


© 2026 Coeur d'Alene MLS. All rights reserved. The data relating to real estate for sale or lease on this web site comes in part from Coeur d'Alene MLS. IDX information is provided exclusively for consumers' personal, non-commercial use and may not be used for any purpose other than to identify prospective properties consumers may be interested in purchasing. Information is deemed reliable but is not guaranteed accurate by the MLS or Idaho Listings Group | Keller Williams Realty Coeur d’ Alene.Data last updated: 2026-01-13T00:02:33.443.
 
https://bt-photos.global.ssl.fastly.net/coeurdalene/orig_boomver_3_25-423-2.jpg https://bt-photos.global.ssl.fastly.net/coeurdalene/orig_boomver_3_25-423-2.jpg https://bt-photos.global.ssl.fastly.net/coeurdalene/orig_boomver_3_25-423-2.jpg
Logo
Idaho Listings Group | Keller Williams Realty Coeur d’ Alene
3931 N Schreiber Way
Coeur d’ Alene ID, 83815